Leave a Message

Thank you for your message. I will be in touch with you shortly.

Explore Our Properties

Property Description

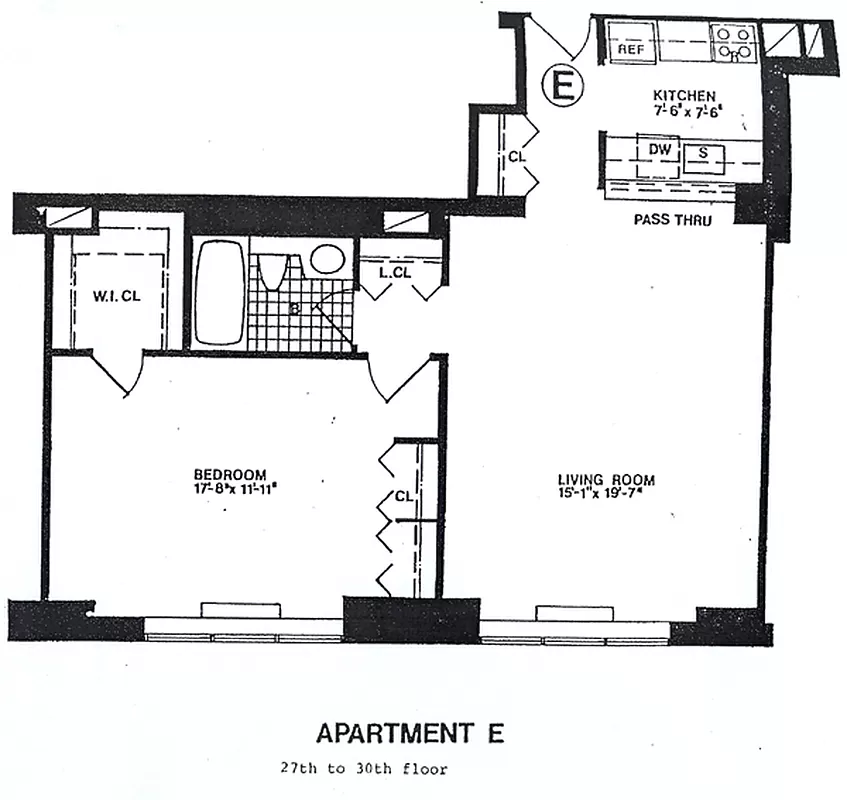
Welcome to this high floor and sophisticated one-bedroom Lincoln Square condo on West 61st Street.

Enter into this bright and thoughtfully laid out home, and you'll immediately appreciate the updated flooring throughout. There is an open kitchen with plenty of storage, five closets, including a rare walk-in primary closet, which is only found in the E lines between floors 27 and 30.

The building offers white glove service with a 24-hour door person, concierge, and a live-in superintendent. Residents can also enjoy the convenience of a roof garden, outdoor sitting area, bike storage, and laundry on every floor.

Situated near Lincoln Center, Whole Foods, Time Warner Center, Central Park, and Columbus Circle, this neighborhood is a paradise for food enthusiasts with an array of dining options.

Please note that The Beaumont is a pet-free and smoke-free building, ensuring a clean and serene atmosphere for all residents.

Don't miss the opportunity to experience luxury living in this prime Manhattan location. Schedule your viewing today and embrace the epitome of urban elegance.

Advertised taxes including condo/coop abatement for qualified buyer

Overview

Property Status
Sold
MLS ID
RLS10955990
Property Type
Condo
Year Built
1982

Features & Amenities

Stories
30
Parking
Garage
Laundry Room
Common On Floor, Common Area
Appliances
Dishwasher
Sales Price
$940,000
Real Estate Tax
$12,288/yr
Common Charges
$991/mo

Downloads

30 W 61st Street 29E

Schedule a Tour

I would love to help you see this beautiful home! As a full-service brokerage, I can help you tour. Please submit an offer, and answer questions about the buying process.

Thank you

for your interest in 30 W 61st Street 29E, New York City, NY 10023

30 W 61st Street 29E
Navigate

I'm Interested In

30 W 61st Street 29E

or
  • CallEric Thai

    License #10401295050

    (929) 398-9445
  • Exclusive Listings

    Luxury Properties in Manhattan

    Explore handpicked residences including The Beekman Condominium and premier Lower Manhattan homes.

    • 340 E 64th St, #33A Sold

      $2,350,000

      340 East 64th Street Unit 33A, New York, NY 10065

      • 3 Beds
      • 3 Baths
      • 1,571 Sq.Ft.
    • 340 E 64th St, #18J Sold

      $1,935,000

      340 East 64th Street Unit 18J, New York, NY 10065

      • 2 Beds
      • 2 Baths
      • 1,487 Sq.Ft.
    • 340 East 64th Street Unit 4C Sold

      $1,900,000

      340 East 64th Street Unit 4C, New York, NY 10065

      • 3 Beds
      • 2 Baths
      • 1,447 Sq.Ft.
    • 360 E 88th Street 18D For Sale

      $1,895,000

      360 E 88th Street 18D, New York City, NY 10128

      Listing Courtesy Daniel Karp with Compass

      • 2 Beds
      • 3 Baths
      • 1,338 Sq.Ft.
    • 20 E 35th St, #2LM Sold

      $1,702,500

      20 East 35th Street Unit 2LM, New York, NY 10016

      • 3 Beds
      • 3 Baths
      • 2,017 Sq.Ft.
    • 1623 3rd Ave, #26A Sold

      $1,675,000

      1623 3rd Avenue Unit 26A, New York, NY 10128

      • 3 Beds
      • 2 Baths
      • 1,385 Sq.Ft.
    • 425 E 58th Street 28B Sold

      $1,650,000

      425 E 58th Street 28B, New York City, NY 10022

      Listing Courtesy Gabriele Devlin with Sothebys International Realty

      • 2 Beds
      • 3 Baths
      • 1,800 Sq.Ft.
    • 170 E 87th Street E9GH Sold

      $1,595,000

      170 E 87th Street E9GH, New York City, NY 10128

      Listing Courtesy Daniel Karp with Compass

      • 2 Beds
      • 2 Baths
      • 1,634 Sq.Ft.
    • 530 E 76th St APT 27E Sold

      $1,550,000

      530 E 76th St APT 27E, New York, NY 10021

      • 2 Beds
      • 2 Baths
    • 1601 Third Ave, #27H Sold

      $1,500,000

      1601 Third Avenue Unit 27H, New York, NY 10128

      • 2 Beds
      • 2 Baths
      • 1,162 Sq.Ft.
    • 343 Fourth Ave, #9B Sold

      $1,500,000

      343 Fourth Avenue Unit 9B, Brooklyn, NY 11215

      • 3 Beds
      • 2 Baths
      • 1,173 Sq.Ft.
    • 315 E 70th St, #6H Sold

      $1,330,000

      315 East 70th Street #6H, New York, NY 10021

      • 2 Beds
      • 2 Baths
      • 1,300 Sq.Ft.
    • 315 E 70TH Street 6H Sold

      $1,330,000

      315 E 70TH Street 6H, New York City, NY 10021

      Listing Courtesy Stanley Liu with Corcoran Group

      • 2 Beds
      • 2 Baths
      • 1,300 Sq.Ft.
    • 524 E 72nd Street 22D For Sale

      $1,280,000

      524 E 72nd Street 22D, New York City, NY 10021

      Listing Courtesy Eric Thai with Compass

      • 2 Beds
      • 2 Baths
      • 1,000 Sq.Ft.
    • 340 E 64th St, #11P Sold

      $1,155,000

      340 East 64th Street Unit 11P, New York, NY 10065

      • 2 Beds
      • 1 Bath
      • 961 Sq.Ft.
    • 350 E 82nd St, #2J Sold

      $1,130,000

      350 East 82nd Street Unit 2J, New York, NY 10028

      • 2 Beds
      • 2 Baths
      • 1,129 Sq.Ft.
    • 340 E 64th St, #5E Sold

      $1,065,000

      340 East 64th Street Unit 5E, New York, NY 10065

      • 2 Beds
      • 2 Baths
      • 1,052 Sq.Ft.
    • 1 Irving Pl, #V9D Sold

      $999,999

      1 Irving Place Unit V9D, New York, NY 10003

      • 1 Bed
      • 1 Bath
    • 524 E 72nd Street 26A Sold

      $999,000

      524 E 72nd Street 26A, New York City, NY 10021

      Listing Courtesy Daniel Karp with Compass

      • 1 Bed
      • 1 Bath
      • 755 Sq.Ft.
    • 350 E 62nd Street PHD For Sale

      $995,000

      350 E 62nd Street PHD, New York City, NY 10065

      Listing Courtesy Eric Thai with Compass

      • 2 Beds
      • 2 Baths
      • 1,000 Sq.Ft.
    • 2-17 51st Avenue 508 Sold

      $979,000

      2-17 51st Avenue 508, Queens, NY 11101

      Listing Courtesy Eric Thai with Compass

      • 1 Bed
      • 1 Bath
      • 890 Sq.Ft.
    • 48-15 11th St, 6A Sold

      $960,000

      48-15 11th Street Unit 6A, Long Island City, NY 11101

      • 1 Bed
      • 1 Bath
    • 225 E 86th St, #204 Sold

      $940,000

      225 East 86th Street Unit 204, New York, NY 10028

      • 1 Bed
      • 1 Bath
      • 913 Sq.Ft.
    • 30 W 61st Street 29E Sold

      $940,000

      30 W 61st Street 29E, New York City, NY 10023

      Listing Courtesy Ariel Dagan with Compass

      • 1 Bed
      • 1 Bath
      • 711 Sq.Ft.
    • 404 E 76th St, #3I Sold

      $895,000

      404 East 76th Street Unit 3I, New York, NY 10021

      • 1 Bed
      • 1 Bath
      • 743 Sq.Ft.
    • 1623 3rd Ave, #42C Sold

      $885,000

      1623 3rd Avenue Unit 42C, New York, NY 10128

      • 1 Bed
      • 1 Bath
      • 800 Sq.Ft.
    • 400 E 77th Street 12E Sold

      $880,000

      400 E 77th Street 12E, New York City, NY 10075

      Listing Courtesy Eric Thai with Compass

      • 2 Beds
      • 1 Bath
      • Sq.Ft.
    • 205 E 85th Street 10M Sold

      $869,000

      205 E 85th Street 10M, New York City, NY 10028

      Listing Courtesy Eric Thai with Compass

      • 1 Bath
      • 525 Sq.Ft.
    • 12-16 30th Avenue 202 Sold

      $865,003

      12-16 30th Avenue 202, Queens, NY 11102

      Listing Courtesy Marc A Dimov with Compass

      • 1 Bed
      • 1 Bath
      • 692 Sq.Ft.
    • 13-11 Jackson Avenue 8D For Sale

      $859,000

      13-11 Jackson Avenue 8D, Queens, NY 11101

      Listing Courtesy Eric Thai with Compass

      • 1 Bed
      • 1 Bath
      • 786 Sq.Ft.
    • 12-16 30th Ave, Unit 202 Sold

      $825,000

      12-16 30th Ave Unit 202

      • 1 Bed
      • 2 Baths
    • 411 E 53rd St, # 9G Sold

      $820,000

      411 East 53rd Street Unit 9G, New York, NY 10022

      • 1 Bed
      • 1 Bath
      • 850 Sq.Ft.
    • 345 E 80th Street 21G Sold

      $810,000

      345 E 80th Street 21G, New York City, NY 10075

      Listing Courtesy Daniel Karp with Compass

      • 1 Bed
      • 1 Bath
      • 706 Sq.Ft.
    • 40-22 61st St, #1J Sold

      $799,326

      40-22 61st Street Unit 1J

      • 1 Bed
      • 1 Bath
    • 310 E 46th Street 19L For Sale

      $799,000

      310 E 46th Street 19L, New York City, NY 10017

      Listing Courtesy Daniel Karp with Compass

      • 1 Bed
      • 1 Bath
      • Sq.Ft.
    • 350 E 62nd Street 2B Pending

      $795,000

      350 E 62nd Street 2B, New York City, NY 10065

      Listing Courtesy Eric Thai with Compass

      • 2 Beds
      • 1 Bath
      • 875 Sq.Ft.
    • 80 Park Avenue 12F For Sale

      $795,000

      80 Park Avenue 12F, New York City, NY 10016

      • 1 Bed
      • 1 Bath
      • 607 Sq.Ft.
    • 23-16 31st Ave, #6B Sold

      $784,052

      23-16 31st Avenue Unit 6B, Astoria, NY 11106

    • 155 W 68TH Street 810 Sold

      $765,000

      155 W 68TH Street 810, New York City, NY 10023

      Listing Courtesy One Fifty Five Sales Team with Brown Harris Stevens Development Marketing LLC

      • 1 Bath
      • 545 Sq.Ft.
    • 23-16 31st Ave, #PHD Sold

      $730,000

      23-16 31st Avenue Unit PHD, Astoria, NY 11106

      • 1 Bed
      • 1 Bath
    • 411 E 53rd Street 3B For Sale

      $725,000

      411 E 53rd Street 3B, New York City, NY 10022

      Listing Courtesy Daniel Karp with Compass

      • 1 Bed
      • 1 Bath
      • 700 Sq.Ft.
    • 330 E 80th St, #4S Sold

      $673,650

      330 East 80th Street Unit 4S, New York, NY 10075

      • 2 Beds
      • 1 Bath
      • 900 Sq.Ft.
    • 144-23 Barclay Avenue 1-B Sold

      $625,000

      144-23 Barclay Avenue 1-B, Queens, NY 11355

      Listing Courtesy Eric Thai with Compass

      • 2 Beds
      • 2 Baths
      • 1,015 Sq.Ft.
    • 350 W 42nd St, #8H Sold

      $618,888

      350 West 42nd St APT 8H, New York, NY 10036

      • 1 Bath
    • 404 E 66th St, #12H Sold

      $610,000

      404 East 66th Street Unit 12H, New York, NY 10016

      • 3 Beds
      • 3 Baths
      • 2,017 Sq.Ft.
    • 1619 Third Ave, #6B Sold

      $597,500

      1619 Third Ave Unit 6B, New York, NY 10128

      • 1 Bath
      • 510 Sq.Ft.
    • 170 W 23rd Street 5X Sold

      $573,000

      170 W 23rd Street 5X, New York City, NY 10011

      Listing Courtesy Yury Holohan with Compass

      • 1 Bath
      • 440 Sq.Ft.
    • 150 E 85th Street 10-C Sold

      $550,000

      150 E 85th Street 10-C, New York City, NY 10028

      Listing Courtesy Daniel Karp with Compass

      • 1 Bath
      • 393 Sq.Ft.
    • 88 GREENWICH Street 925 Sold

      $535,000

      88 GREENWICH Street 925, New York City, NY 10006

      Listing Courtesy Briana Siaca with Corcoran Group

      • 1 Bath
      • 532 Sq.Ft.
    • 167 E 67th Street 14B For Sale

      $525,000

      167 E 67th Street 14B, New York City, NY 10065

      Listing Courtesy Ariel Dagan with Compass

      • 1 Bath
      • Sq.Ft.
    View All Properties

    Follow Us On Instagram